福建医科大学医疗健康科技园原医疗用品经营部区块“产教融合”招商方案
一、项目概况:
1.1项目名称:福建医科大学医疗健康科技园原医疗用品经营部区块“产教融合”招商方案
1.2招商方式:公开遴选。
二、项目背景:
根据《国家创新驱动发展战略纲要》、《深化科技体制改革实施方案》、《福建省人民政府办公厅关于印发省级高新技术企业扶持办法的通知》(闽政办〔2017〕141号)、福建省科技厅等9部门联合发布《关于促进高校和科研机构科技成果转化及产业化的若干措施》(闽教科〔2021〕7号)等政策精神,推动大众创业、万众创新,积极建设高新技术产业平台,培育新的经济增长点,推进医疗健康科技产业发展,是当前医学高等院校服务社会发展的使命和担当。
福建医科大学(以下简称“福医”)高度重视产、学、研、用一体化平台的建设,经研究,立足医学专业特色和乌山校区的区位优势,依托乌山校区沿交通路的鹤龄楼(含附属楼)及荷塘路沿街店面等现有房产资源,建设“福建医科大学医疗健康科技园”(以下简称“科技园”)。由福建医科大学资产经营有限公司(以下简称“公司”)运营。
三、项目定位:
项目在整体定位上,秉持着以建设医疗健康科技园为抓手,整合医大人才、经营性资产、政策、资金、企业、医院等各方资源,构建科研成果转化、产业发展、社会服务、创造就业及税收的综合型“产、学、研、用”一体化平台。
在发展模式上,立足于学校、公司、医疗健康龙头企业三大主体强强联合,学校提供科研能力、科研成果、专业技术人才等优势资源,整合场地、资金、市场、商务团队等资源,三方联合打造实验室、实训中心,在政府及运营方等多方联合支持下,将科研成果转化落地,形成服务社会能力。
在功能模块上,着力建设医疗健康产业聚合平台。通过组织论坛、会展等形式,促进医疗健康产业的交流学习,形成良好的学术氛围,提供成果展示的窗口;通过引进龙头企业、研学产结合,转化科技成果,聚合研究资源;通过相关医疗健康产业链的聚集,吸引投资公司,孵化科创企业;通过结合研产成果、应用场景、医院衍生业务、产业服务配套,打造面向客户的医疗健康服务综合体,实现产业闭环。
通过打造一个福建省内医疗健康行业产学研用融合发展的平台,进而将科技园打造成为福建省医疗健康产业聚集区,并成为与全国医疗健康产业资源对接的重要窗口。
四、项目载体:
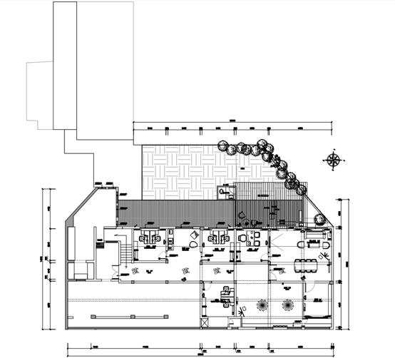
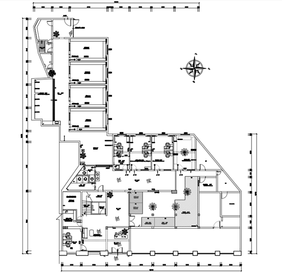
项目载体——福建医科大学医疗健康科技园原医疗用品经营部区块,位于交通路36号、38号,两层面积共约569.37平方米(其中已扣减一楼四间档案室90.63平方米)。



一层平面图

二层平面图
五、项目优势
地域优势。科技园位于福州市台江区,东临规划路,西接荷塘路,南至交通路,北至仁德路,位于福州主城区,周边配套、教育资源、医疗资源环伺,区域发展成熟,交通便捷,居民、生活、教育氛围十分浓厚。项目周边配套上,毗邻两个地铁站,公共交通便捷,项目500米范围内有酒店7家,1.5公里范围内有酒店204家,3公里范围内酒店超过467家,酒店数量众多,可以充分满足商务、会务需求。同时,项目500米范围内有三甲医院2家,1.5公里范围内各级医院11家,3公里范围内26家,其中三甲医院6家,专科医院15家,医院数量众多,医疗资源密集丰富。
高校优势。福医在学术力量、医疗资源、功能载体、人才资源等方面将为项目建设和发展提供技术保障。在学术力量上,作为福建省“双一流”建设高校,拥有雄厚的学术力量。在医疗资源上,福医附属医院及周边拥有一流的医疗资源,是全省优质医疗资源最集中的区域。在功能载体上,福医乌山校区位于台江核心区域,交通便捷、区位优越,且拥有可供开发的二期建设用地,为项目发展提供良好条件。
发展趋势。2021年5月,《福州市仓山区十四五规划纲要》,提出将紧抓国家部委支持在福州新区设立国际医疗综合实验区契机,围绕“两园两中心”研究出台扶持政策,以更大力度促进生物医药产业园区式、集聚式发展。2021年12月,福州国际医疗综合实验区正式获批,重点布局药械研发与生产、细胞产业与再生医学、第三方医学检测、高端医疗服务等产业,并重点引进医药研发企业、医疗机构、科研院所等,着力打造现代医疗开放发展先行区、两岸医学医疗合作示范区、高端医疗服务生态样板区、生物医药科技创新引领区。2022年7月,位于福州国际医疗综合实验区内的金山医药产业园揭牌暨项目集中签约仪式在福州市仓山区举行,目前产业园内已入驻医药企业25家。
综上所述,福州市将建设国际医疗综合实验区作为产业发展驱动龙头的规划,对于本项目是重要利好。同时,相较于其他园区以城建开发驱动,先建设,再招商的模式,本项目以现有成熟的医疗、教育、学术资源作为建设基础,真正能够从产业导入入手,做到学、研、产、用的无缝接驳和良性驱动,而且从全国范围来看,以高校驱动的产业园区更具备成为城市长期发展发动机的能力。
六、合作方资格要求
1.合作方须秉持以建设福建医科大学产、学、研、用一体化科创中心(福建医科大学医疗健康科技园)为目标,校企合作经营产业项目,主要为“产教融合”合作项目。
2.合作方必须为中华人民共和国境内注册成立、合法存续的法人、非法人组织或具有完全民事行为能力的自然人(含个体工商户)。
3.合作方没有处于财产被接管、冻结、诉讼仲裁案件破产的状态。
4.合作方必须承诺在以往的任何经营项目中从未出现违约、拖欠租金或拖欠水电费等行为;在以往项目参与过程中,没有发生任何欺骗、舞弊等行为。
5.合作方一般需为医疗、健康等相关企业性质或经营范围和经营项目实际为医疗、健康产业。
有意向参与本项目的意向合作方,可在公告期间通过以下方式联系,并填报以下附件:《福建医科大学医疗健康科技园“产教融合”合作项目合作方意向登记表》,以便安排洽谈会面和进一步信息披露事宜。
时间:本公告发布之日起至2024年10月12日。
地址:福建省福州市交通路88号。
联系人:小江
电话: 059183505271,18606939220
本次公告仅为项目前期市场调研的意向公告,以便于项目遴选意向合作方对项目进行尽职调查。该项目的相关内容以正式发布的信息公告为准。
福建医科大学医疗健康科技园“产教融合”合作项目合作方意向登记表20240920.docx

